Aidosti valmis.
Jukkatalo on suunniteltu muokattavaksi asujan tarpeiden mukaan. Emme tarjoa valmista mallistoa, vaan mahdollisuuden suunnitella juuri itselle sopiva koti. Valitse sisäänkäynnin tyyli, makuuhuoneiden määrä, ruokakomero tai vaikkapa kätevä arkieteinen – Jukkatalo mukautuu valintojesi mukana. Tutustu täällä ensimmäisiin, rakenteilla oleviin koteihin ja inspiroidu!
Toteutuvia koteja
Olemme suunnitelleet jo useita tulevia Jukkataloja asiakkaillemme. Valmiit suunnitelmat antavat inspiraatiota ja ideoita myös omaan kotiisi. Tutustu, löydä suosikkisi ja Rakenna oma Jukkatalo.
80-100 m² kodit
100-120 m² kodit
120-150 m² kodit
Kaksitasoiset kodit
Suosittuja pohjaratkaisuja
Kokosimme kolme erilaista ja suosittua pohjakuvaa helpottamaan kotisi suunnittelua. Kaikkiin esimerkkeihin on tehty lisävalintoja, jotka muodostavat pohjakuvan mukaisen lopputuloksen.

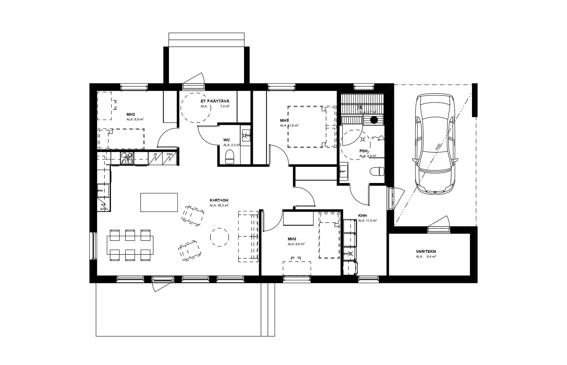
Jukkatalo 87
kolmen makuuhuoneen Jukkatalo
Tähän esimerkkikotiin on Jukkatalon vakiotoimitussisällön lisäksi valittu:
- Kolmas makuuhuone
- Arkieteinen
- Autokatos

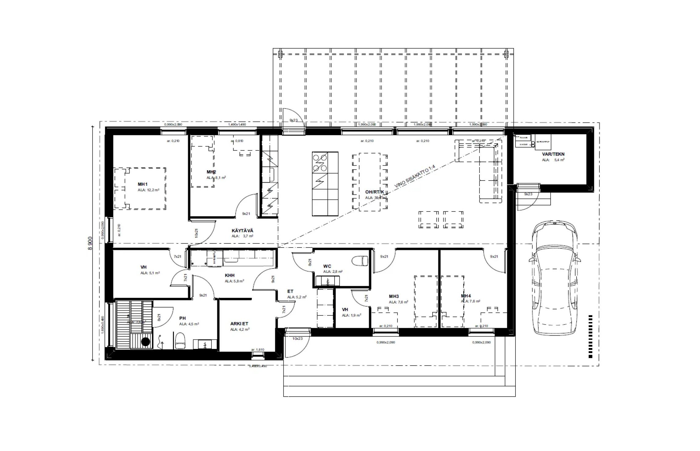
Jukkatalo 90
monipuolisesti varusteltu Jukkatalo
Tähän esimerkkikotiin on Jukkatalon vakiotoimitussisällön lisäksi valittu:
- Kolmas makuuhuone
- Sisävarasto
- Arkieteinen
- Ruokakomero
- Integroitu sisääntulokatos
- Integroitu terassi

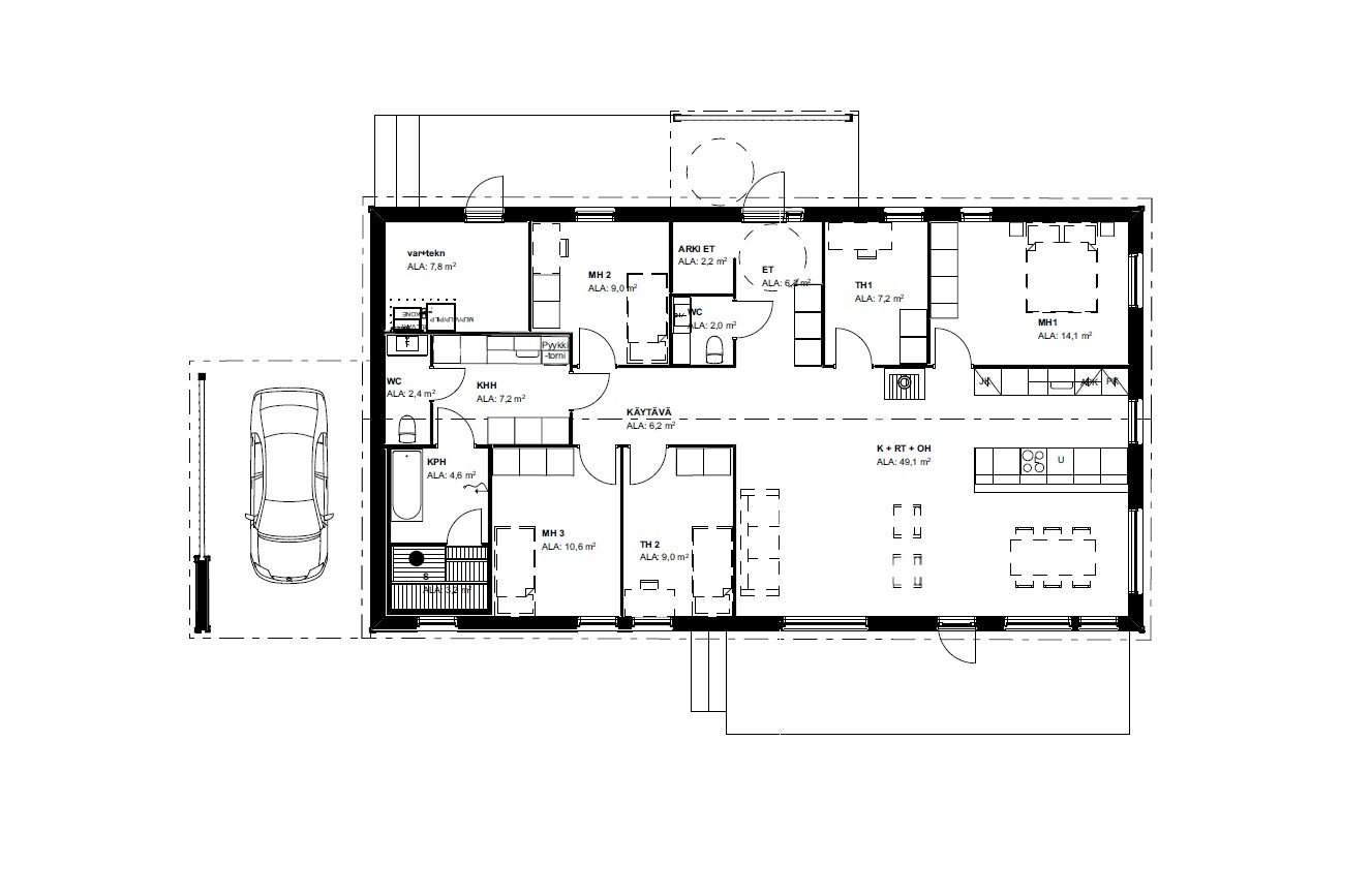
Jukkatalo 95
kolmen makuuhuoneen Jukkatalo
Tähän esimerkkikotiin on Jukkatalon vakiotoimitussisällön lisäksi valittu:
- Kolmas makuuhuone
- Sisävarasto
- Arkieteinen
- Leveä sisääntulokatos
Galleria

Tilaa Jukkaesite
Tutustu uuteen Jukkataloon kaikessa rauhassa.
Sisustus – Kolme tyylipolkua,
sinun valintasi
Jukkatalo tuo uuden konseptin myös sisustusvaiheeseen tarjoten kolme vaihtoehtoista Tyylipolkua. Ammattilaisemme valmiiksi suunnitellut Tyylipolut nopeuttavat päätöksentekoa ja tuovat varmuutta valintoihin kun on aika pohtia kodin sisäpintoja. Tutustu Tyylipolkujen materiaaleihin täältä.

Minimalistinen
järjestelijä
Täällä asuu ihminen, joka löytää rauhan siistissä ja harkitussa ympäristössä. Hän nauttii siitä, kun arki rullaa sujuvasti – tavaroilla on omat paikkansa, eikä ympärillä ole mitään ylimääräistä. Hän on kotikeskeinen ja arvostaa ympäristön esteettistä harmoniaa.

Luonnollinen
esteetikko
Tässä kodissa vaalitaan tasapainoa ja arjen kauneutta. Sisustuksessa on suosittu luonnonvaloa tulvivaa tilaa, pehmeitä materiaaleja ja puuta. Arjen estetiikka näkyy rauhallisina sävyinä ja viimeistellyssä yksinkertaisuudessa.



Oman tien
kulkija
Täällä asuu inspiroituja, jonka koti saa elää ja muuttua fiiliksen mukaan. Hän ei pelkää värejä, yhdistelmiä tai yksityiskohtia. Tärkeintä on, että koti tuntuu omalta – silottelematta.

Miksi valita Jukkatalo?
1
Kannamme rakentamisen vastuun puolestasi
Tarjoamme aidosti valmiin valmistalon, jonka rakentamiseen tai projektinjohtamiseen sinun ei tarvitse osallistua.
2
Sinulle sopiva koti
Jukkatalon suunnittelu itselle toimivaksi on helppoa, kun tarjolla ei ole kymmeniä eri malleja. Toimivalle lähtömallille on kätevää lisätä huoneita ja ominaisuuksia omien tarpeiden mukaan.
3
Rakennamme kestävästi
Suunnittelemme kotisi teknisesti niin, ettei homeriskiä synny. Jukkataloja suunnittelevat ainoastaan viranomaisen hyväksymät pääsuunnittelijat.
4
Tarjoamme valmiin sisustuskonseptin
Olemme suunnitelleet valmiiksi kolme erilaista sisustustyyliä, jotka tarjoavat selkeän ja harmonisen tavan oman kodin viimeistelyyn. Tyylipolut auttavat hahmottamaan kokonaisuuksia ja tekevät sisustusvalinnoista sujuvampia ilman, että oma persoonallinen tyyli jää pois.
5
Huollamme kotia muuton jälkeen
Jukkahuolto-sopimus kattaa erilaiset talon huoltopalvelut määräaikaistarkastuksista vuosikorjauksiin kahdeksi ensimmäiseksi vuodeksi.
6
Taustallamme on arvokasta kokemusta
Arvokas historiamme pientalorakentajana tukee uutta tarinaamme. Olemme poimineet mukaan parhaat opit menneisyydestä, jotka näkyvät mm. Jukkatalon arvoissa, laadukkaassa työnjäljessä ja asiakasymmärryksessä.
Kiinnostuitko? Kerromme mielellämme lisää
Ota yhteyttä ja kerro meille, millaisesta kodista haaveilet.
Talon tekniset tiedot
Ulkoverhous ja katto
Jukkatalossa on puinen ulkoverhouspaneeli, johon on mahdollista valita tehosteseinäsävy. Harjakaton materiaalina on pelti. Talojen elementtiseinät ja -katot toteuttaa yhteistyökumppanimme.
Sisustus ja pinnat
Jukkatalojen vakiosisustus on kattava. Tarjoamme kolme erilaista Tyylipolkua sisustusvalintojen helpottamiseksi. Jokaiseen Jukkataloon kuuluu arjen pieninä mukavuuksina yhden makuuhuoneen tekstiililaattalattia sekä äänieristetty väliovi. Kylpyhuone- ja saunaosastot tulevat valmiina moduuleina yhteistyökumppaniltamme.
Lämmitysjärjestelmä
Lämmitysmuotona Jukkatalossa on energiatehokas poistoilmalämpöpumppu. Taloissa on vesikiertoinen lattialämmitys ja koneellinen ilmanvaihto lämmön talteenotolla. Jukkataloon on valittavissa myös maalämpö lisähinnasta.
Pihatyöt
Mitä olisi täysin valmis koti ilman pihaa? Jokaisen Jukkatalon viimeistelyyn kuuluu nurmikon kylväminen sekä ajoväylän päällystäminen kivituhkalla. Tästä asukkaan on kätevä jatkaa pihatöitä oman makunsa mukaan ilman, että tontti näyttää edelleen rakennustyömaalta.
